

MUSCAT: Agreements have been signed to implement key infrastructure services for Palm Hills, a major real estate development in Khasab that is poised to redefine modern living in the region.
As part of the Integrated Residential Neighbourhoods Initiative by the Ministry of Housing and Urban Planning, the project aims to set new benchmarks for sustainable community development in Oman.
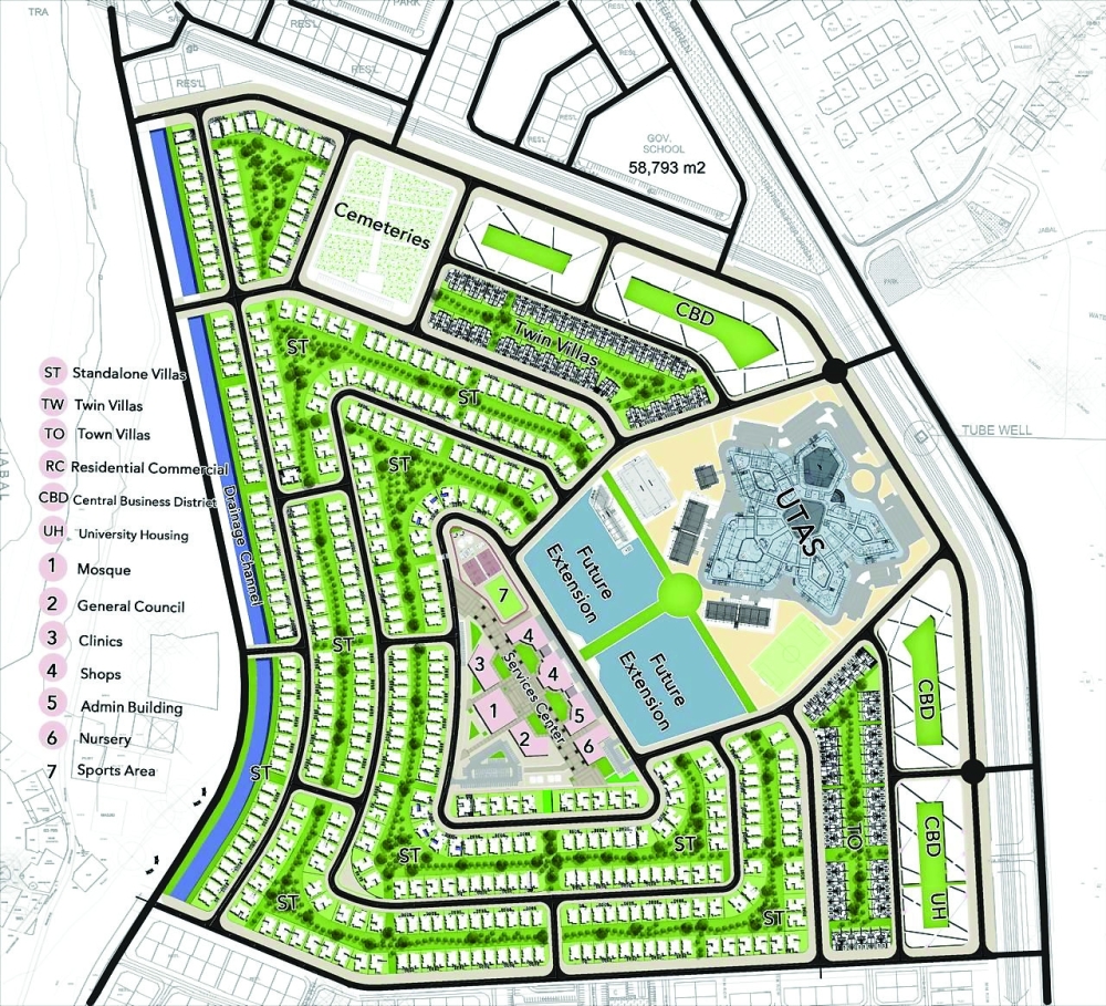
Musandam Global Investment Company SAOC is spearheading this transformative project by finalising critical infrastructure agreements. With an investment estimated at RO 70 million, Palm Hills will span 635,000 square metres and offer a comprehensive mix of facilities.
The development plans include 650 residential units integrated with commercial spaces, a hotel and essential public amenities such as a mosque, a public majlis, sports fields, a medical centre and a nursery — all surrounded by ample green areas.
In addition to these, the project will host a branch of the University of Technology and Applied Sciences in Musandam, reinforcing the region’s commitment to enhancing educational opportunities alongside urban growth.
The infrastructure framework for Palm Hills is designed to ensure that the community is well-equipped with modern utilities. Agreements have been inked for the construction of water and sewage networks in collaboration with Nama Water Services Company, while partnerships with Nama Electricity Distribution Company will see the establishment of robust electricity distribution systems.
Furthermore, a fibre optic network is set to be installed through cooperation with Oman Broadband Company, ensuring that the development is connected with state-of-the-art digital infrastructure. This integrated approach not only secures reliable utility services but also bolsters the overall sustainability of the project.
A distinctive feature of Palm Hills is its appeal to both local and international investors. Twenty-five per cent of the residential units are earmarked for sale to Gulf nationals and foreign buyers, a strategic move expected to enhance the investment allure and drive real estate growth in Musandam.
First introduced to the market during the 3rd Oman Real Estate Expo (OREX) and Oman Design & Build Week last year, the project embodies the broader vision of the Integrated Residential Neighbourhoods Initiative to deliver affordable, high-quality housing solutions that cater to diverse needs.
As construction moves forward, Palm Hills is set to generate significant economic momentum in Khasab by creating job opportunities across construction, real estate, hospitality and retail sectors.
Oman Observer is now on the WhatsApp channel. Click here